Although multi-generational homes are not the norm for most of us, I continue to hear that additional dwelling units (ADUs) are a highly desirable feature in today’s hot housing market. A few years ago, I read that Millennial buyer were very attracted to ADUs and many planned to rent them out to subsidize their income. With the pandemic and more people working from home, ADUs can be a great solution for home offices or studios or even to launch a small business. Of course, they have always been a great solution for house guests or family members. Especially as Baby Boomers enter retirement age, ADUs can also allow extended family to live together and incorporate aging in place aspects into their homes.
This article gives a lot of good information on the various types of ADUs found around the country. You can’t help but notice that many of the ADUs are in older homes – in the format of garage or basement apartments. I love the reference to the Fonz living in an ADU with the Cunningham family in Happy Days!
As always, trends circle back and thus we are again looking at adding these valuable spaces to new construction. I have noticed more homes with more than one primary suite and many homes with small suites with a private entrance and parking. Several of my clients designed these specifically with an older family member in mind or with the expectation that an adult child might return.
One of the best parts of this type of design is that you can create a nice environment for your family while providing privacy for those using the ADU. Things to consider during construction or while shopping for a home with an ADU can include:
- a door between the main home and the entrance to the ADU,
- a parking place near the entrance to the ADU,
- a full kitchen or at least a kitchenette,
- a full bathroom,
- adequate storage,
- zoned or separate HVAC
- ideally a separate living/dining area and
- a bedroom with a closet.
With all those options in place, your ADU can serve nearly any purpose!
When we were building our home a few years ago, we knew we didn’t need a huge house but we were building in a neighborhood of fairly large homes. Therefore, we needed to build appropriately. Also, in our neighborhood, many people have nannies or au-pairs who may live at the house. Others house family members for weeks or months at a time, so even if you don’t need the extra space for your daily activities, the home can accommodate many other needs if you build it appropriately.
I knew I wanted to have a studio on our property and with our lot and floorplan, it started out above the garage. Soon, we found a way to move it back over the main part of the house which created a prettier front elevation and was more efficient for the construction. Even though we planned to use it as offices and a design studio, we added a small kitchen with a refrigerator, microwave and dishwasher. We have a small table for eating and were able to create a small desk near the kitchenette. Onui sits at that desk.
We have an open gallery area where Danna works. She has room for a large L-desk, a double lateral file and a guest chair.
The conference room is separated from the task area with reclaimed five-panel doors from the original house. We hung them barn-door style and use the glass panels as our white boards. This space could also be used as a lounge or living room. We have a counter-height table and stools where we can spread out projects and have a built-in wall of cabinets and drawers where we store fabrics, vendor catalogs and samples. There is also a television installed on the wall that can be connected to our computers.
My office has a closet so it can be considered a bedroom. We measured to make sure a queen bed and a nightstand would fit. We included a bathroom with a shower and a built-in linen closet just off the conference room. All in all, it makes a great design studio but would also function as a charming “garage” apartment. We have a door that separates it from the rest of the house so there is privacy for our rare overnight guests. Also, the primary suite is on the exact opposite of the house on the first floor so there is no noise at all. When we are downstairs, we can’t tell if anyone is in the studio or not!
The studio can be entered from our courtyard door, which is across from our front door. Also, I decided I must have a black metal and glass door after installing a beautiful one for my client. I added it to the mudroom area so there is another way to close off the studio from the main house. We generally keep it open but found that during the deep freeze last winter, when we closed that door, it was about 15 degrees warmer in the main home. Also, occasionally we need to keep the cat out of the office and that door works perfectly! Since it is mainly glass, it feels open and modern and it adds a contemporary touch to my overall traditional architecture.
In the marked-up designs below, I show the courtyard door (arrow pointing down) that goes into the vestibule and the new black and glass door (arrow pointing sideways) which separates the vestibule from the mudroom. As you can see, our architect had always planned a door for that space but we decided we didn’t need one. That is, until I saw how cool it would be to add a glass door there.

Décor by Pamela Hope Designs
The curved arrow shows the pathway up the back staircase that opens directly into the PHD studio.
I know by now, if you haven’t visited our studio, you are dying to see photos. I have never had it photographed but probably need to put that on the to-do list…or come see it in person!
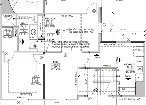
Here is the floorplan of the studio. You can see the small desk near the kitchenette marked at 30” high where Onui works. Danna’s space is in the nook and my office is bedroom 5. There are notes about the reclaimed doors on barn hardware and the reclaimed flooring. We were able to salvage the oak floors out of the old house on the property and used those in the studio. We love them!

Décor by Pamela Hope Designs
Some of the other multi-generational projects that we have undertaken recently included a barndominium that was built as a dwelling and storage area while the ranch house was being built. Now that the ranch and bunk house are up and running, the barndominium is back to being a barn and provides a full bathroom, two private bedrooms and a loft for extra beds. This barndominium was recently featured in an article in Simplemost.
We also find multi-generational needs can be handled in advance while renovating. We are always thinking of universal design elements like easy-to-use fixtures and hardware, enhanced lighting and safety measures like grab bars. We like to have at least one tub in every house, a bench in large showers if space permits and a hand-held showerhead if multiple showerheads are an option. These plumbing upgrades can be very helpful for nearly anyone, including small children, the elderly, anyone with an injury and even pets.
Thinking about multi-generational and multi-use homes is inspiring. Until next time, find your inspiration or call us and we’ll help you find it.






